‹ › ×
    brand-logo
    • Projets
    • Equipement
      • Équipement
      • Médiathèque de Plouzané
      • Centre culturel de la presqu'ile de Crozon
      • Médiathèque de Plouvien
      • Hôpital Morvan à Brest
      • Cercle mixte de l'école de gendarmerie à Dinéault
      • Restaurant Kernévent à Plouzané
      • Salle Aréna à Brest
      • Centre Municipal Omnisport à Brest
      • Salle La forge à Plouvien
      • Stade Francis le Blé à Brest
      • Salle Mac Orlan à Brest
      • Restaurant collectif à Guipavas
      • Restaurant de l'école des Moulins à Plouvien
      • Maisons des arts à Landivisiau
      • MPT de Lambézellec à Brest
    • Tertiaire / Commerce
      • Tertiaire et commerce
      • Boulangerie Bara Goell Toaz à St Thégonnec
      • Bâtiment Cap Océan à Plouzané
      • Galerie Antinoë à Brest
      • CDAS de Brest St Marc
      • Bâitment Satimo à Plouzané
      • Bâtiment Le Ponant à Plouzané
    • Enseignement
      • Enseignement
      • Collège Parc ar C'hoat à Moëlan sur Mer
      • Collège Collobert à Pont de Buis
      • Groupe scolaire du Pilier Rouge à Brest
      • Collège Alain à Crozon
      • Groupe scolaire de Kérinou à Brest
      • Lycée professionnel de Pont de Buis
      • Collège Camille Vallaux au Relecq Kerhuon
    • Logements
      • Logements
      • Logements quartier Kergoat à Brest
      • Bâtiment Bois Belleau à Lanvéoc-Poulmic
      • Logements quartier Sanquer à Brest
      • Logements quartier St Martin à Brest
      • Extension d'une maison à Brest
      • Logements Cdt Drogou à Brest
      • Extension maison à Camaret sur mer
      • Ilot C de la ZAC des Capucins à Brest
      • Extension d'un moulin à Camaret sur Mer
      • Logements rue Massillon à Brest
      • Logements à Loperhet
      • Logements de Coataudon à Guipavas
      • Logements au Stang à Brest
    • Concours
      • Concours
      • Logements Pen ar Creac'h II à Brest
      • Téléphérie urbain de Brest
      • Ecole Stang ar C'hoat à Quimper
      • Médiathèque de Guipavas
      • Gare routière à Plabennec
      • Centre d'incendie et de secours de Châteaulin
      • Urgence de l'hôpital de la Cavale Blanche à Brest
      • Gymnase de l'Europe à Brest
      • Ateliers de l'AMF à Brest
      • Logements bd Pompidou à Brest

    42 logements - Quartier de Sanquer

    BREST

    Carousel Link
     
    ‹ ›

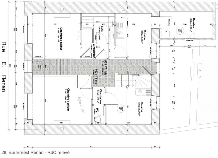
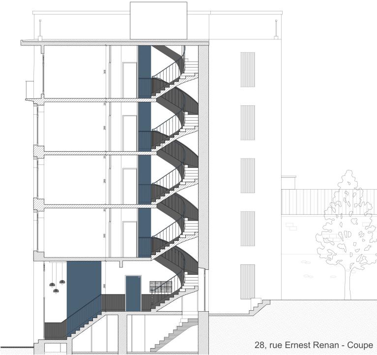
      Réhabilitation et rénovation énergétique d'immeubles BMH

      7 immeubles soit 42 logements

      Sur site occupé 

      Maître d’ouvrage : Brest Metropole Habitat 

      Surface : 2 116 m2

      Montant des travaux HT : 1 168 314 € 

      Achèvement : 2021

      Le projet consiste dans la réhabilitation de sept immeubles cumulant 42 logements dans le quartier de Sanquer à Brest. 

       

      La qualité architecturale de l’ensemble de ces bâtiments de style néo-classique est un aspect important à prendre en compte dans cette opération. La préservation et la mise en valeur des éléments patrimoniaux, comme certaines façades classées comme remarquables, sont primordiales.

       

      La question patrimoniale est à coupler avec celle de la modernisation des bâtiments. Ainsi, par le choix des couleurs de façades, par la pose de nouveaux revêtement muraux, et le travaille sur les ambiances architecturales il s’agit de faire ressortir par petites touches la singularité de chacun des bâtiments.

       

      Non seulement notre ambition est de renouveler l’image des bâtiments, mais notre réflexion s’est attachée également à redonner un maximum de qualité d’usage aux logements. Ceci par le bais de petites interventions pouvant moderniser les typologies d’appartements , la requalification des cours et jardins avec une réflexion sur les locaux poubelles, vélos, séchoirs, jardins privatifs ou collectifs, d’opportunités d’amélioration thermique et d’ITE (Isolation Thermique Extérieure). ou des opportunités de créations de balcons rapportés en façade arrière. 

      Mentions légales