‹ › ×
    brand-logo
    • Projets
    • Equipement
      • Équipement
      • Médiathèque de Plouzané
      • Centre culturel de la presqu'ile de Crozon
      • Médiathèque de Plouvien
      • Hôpital Morvan à Brest
      • Cercle mixte de l'école de gendarmerie à Dinéault
      • Restaurant Kernévent à Plouzané
      • Salle Aréna à Brest
      • Centre Municipal Omnisport à Brest
      • Salle La forge à Plouvien
      • Stade Francis le Blé à Brest
      • Salle Mac Orlan à Brest
      • Restaurant collectif à Guipavas
      • Restaurant de l'école des Moulins à Plouvien
      • Maisons des arts à Landivisiau
      • MPT de Lambézellec à Brest
    • Tertiaire / Commerce
      • Tertiaire et commerce
      • Boulangerie Bara Goell Toaz à St Thégonnec
      • Bâtiment Cap Océan à Plouzané
      • Galerie Antinoë à Brest
      • CDAS de Brest St Marc
      • Bâitment Satimo à Plouzané
      • Bâtiment Le Ponant à Plouzané
    • Enseignement
      • Enseignement
      • Collège Parc ar C'hoat à Moëlan sur Mer
      • Collège Collobert à Pont de Buis
      • Groupe scolaire du Pilier Rouge à Brest
      • Collège Alain à Crozon
      • Groupe scolaire de Kérinou à Brest
      • Lycée professionnel de Pont de Buis
      • Collège Camille Vallaux au Relecq Kerhuon
    • Logements
      • Logements
      • Logements quartier Kergoat à Brest
      • Bâtiment Bois Belleau à Lanvéoc-Poulmic
      • Logements quartier Sanquer à Brest
      • Logements quartier St Martin à Brest
      • Extension d'une maison à Brest
      • Logements Cdt Drogou à Brest
      • Extension maison à Camaret sur mer
      • Ilot C de la ZAC des Capucins à Brest
      • Extension d'un moulin à Camaret sur Mer
      • Logements rue Massillon à Brest
      • Logements à Loperhet
      • Logements de Coataudon à Guipavas
      • Logements au Stang à Brest
    • Concours
      • Concours
      • Logements Pen ar Creac'h II à Brest
      • Téléphérie urbain de Brest
      • Ecole Stang ar C'hoat à Quimper
      • Médiathèque de Guipavas
      • Gare routière à Plabennec
      • Centre d'incendie et de secours de Châteaulin
      • Urgence de l'hôpital de la Cavale Blanche à Brest
      • Gymnase de l'Europe à Brest
      • Ateliers de l'AMF à Brest
      • Logements bd Pompidou à Brest

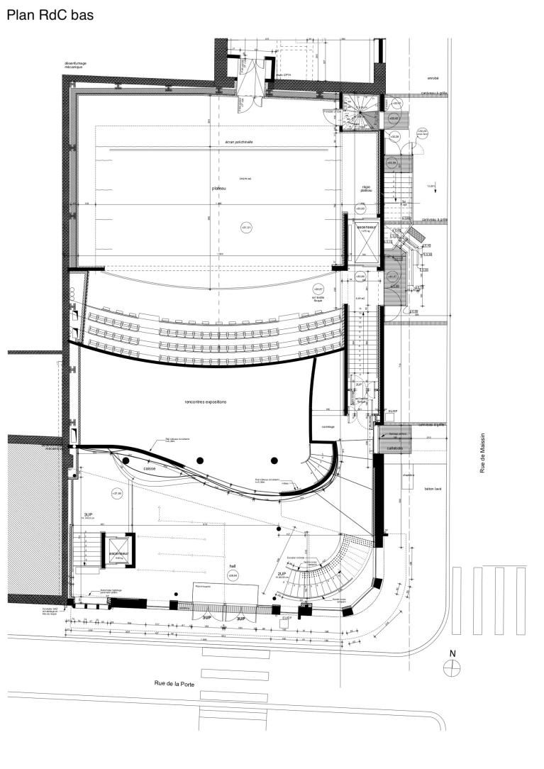
    Salle Mac Orlan

    BREST

    Carousel Link
     
    ‹ ›

      Restructuration et réhabilitation de la salle 

      Salle de 470 places, espace exposition, rencontre, 3ème et loges

      En collaboration avec B. Halet et M. Villette architectes 

      Concours : Lauréat

      Maître d’ouvrage : Ville de Brest

      Surface : 879 m2

      Montant des travaux HT : 3 600 000 €

      Achèvement : Mai 2012

      Lauréat du Prix Architecture Bretagne 2012

      La salle MAC ORLAN appartient à la mémoire collective des habitants de la Rive Droite de Brest et représente à ce titre un équipement emblématique de la période de la reconstruction.

      Au regard de la valeur patrimoniale de ce bâtiment conçu en 1948 par l’architecte Ouchacoff, le parti de cette restructuration vise à initier un dialogue entre la superposition d’une architecture exprimant la modernité de nouveaux modes de vie et celle qui témoigne d’un vécu et d’une épaisseur culturelle et historique.

       

      Un volume en surélévation accueille le gril technique, les régies et la projection, ainsi que l’administration surmontée d’un niveau technique.

      Positionné en attique, il se développe en formes libres et prend de la hauteur dans l’angle en rotonde.

      Son parement en bandes ondoyantes de tôles perforées en acier inoxydable instaure la nouvelle image du MAC ORLAN. Le jour, il capte les reflets du ciel. La nuit, il réfléchit l’éclairage qui le met en scène.

       

      Ce capotage constitue un repère et un continuum sur toute la hauteur de l’édifice. Au rez-de-chaussée, il sépare le hall de la salle d’expositions en jouant de sa perméabilité qui ménage au travers de ses perforations des vues diffuses entre ces deux espaces.

      Cette enveloppe métallique est également « active » en abritant les espaces d’accueil et d’information dans les entrelacs de ses courbes.

       

      Par cette extension par le haut, la nouvelle stature donnée au MAC ORLAN conforte la dimension urbaine de cet équipement et sa place dans la ville.

      Avant

      Après

      Mentions légales